Кабельные конструкции используемые в Московском метрополитене
Под кабельными конструкциями для метрополитена понимаются все возможные металлоконструкции, используемые для прокладки кабельных линий, установки электротехнического оборудования, расстановки эл.шкафов в тоннелях и кабельных коллекторах.
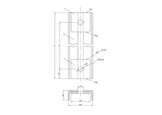
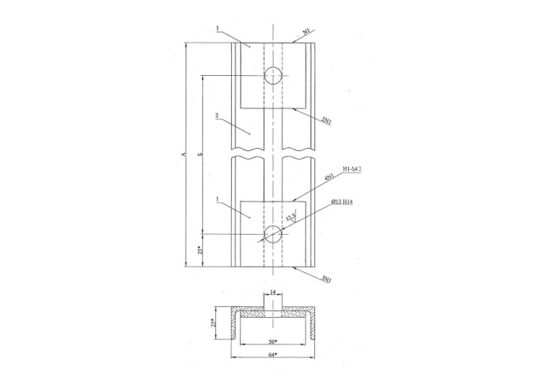
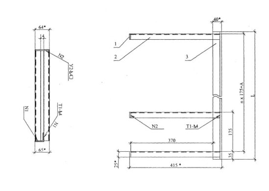
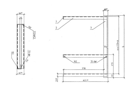
Крепление кабелей на потолочные и полочные кронштейны серии "С" осуществляется специальными скобами СО, СПЯ, СДЛ и др. типов, которые всегда изготавливаются на нашем предприятии ООО "Меткор".
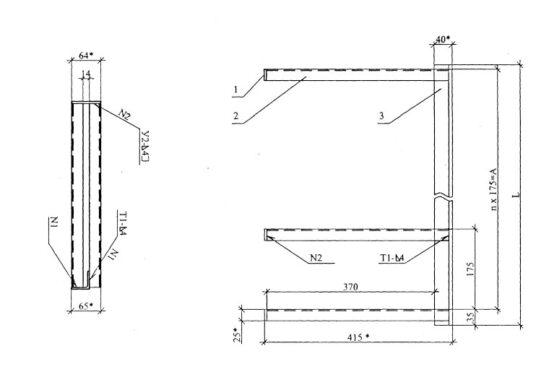
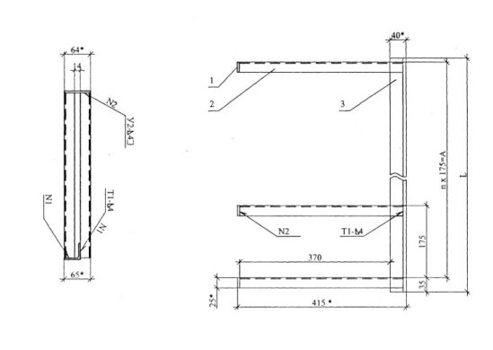
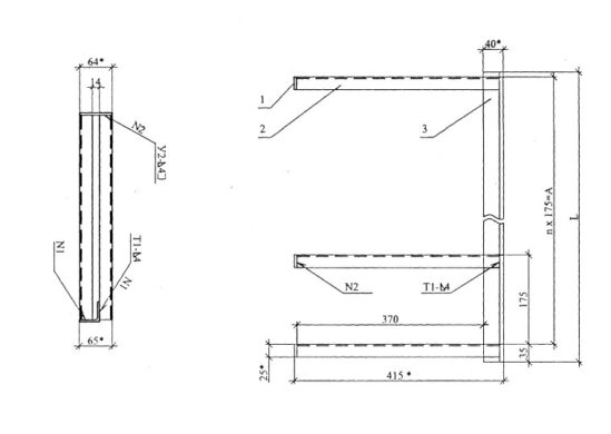
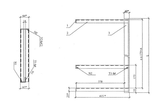
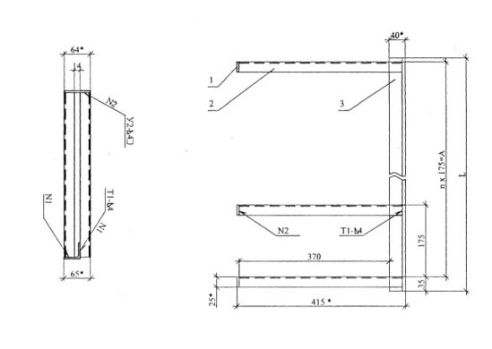
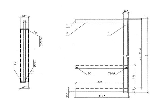
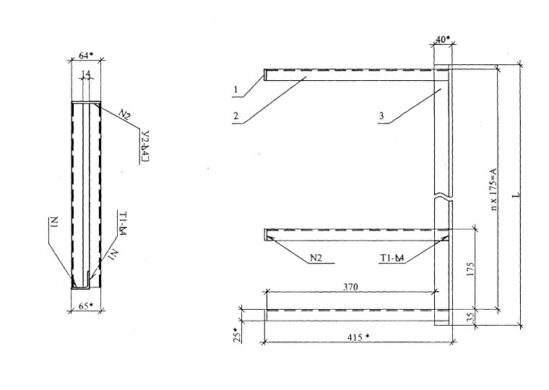
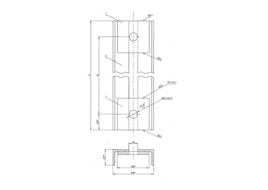
Для прокладки кабельных линий на потолочном пространстве тоннелей и станций используются кронштейны полочно-потолочного типа и рожковые потолочные кронштейны.
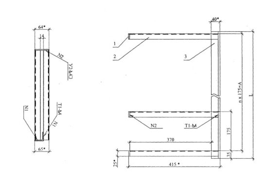
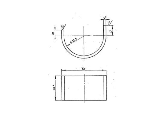
Когда линии необходимо вести вдоль стен станций и тоннелей применяется два вида кронштейнов - рожковые стеновые и полочные стеновые кронштейны. Они в свою очередь разделяются на прямые (для вертикальных прямолинейных стен) и круглые (для круглых стен тоннелей). Сами кабели укладываются при этом на двойные или одинарные рожки или полки.
Изготавливаем также следующую продукцию:
- Основание дроссель-трансф.
- Основание светофорное
- Конструкции путейских ящиков
- Конструкции шафов освещения
- Кожуха для муфт > 1кВ
- Полоса под освещение
- Кронштейн видеонаблюдения
- Крепление шкафа ВН
- Шпилька дроссель-трансф.
- Медная шина
- Прокладка под дроссель
- Рамка знаков РЦ на платформе
- Уголок знаков РЦ в тоннеле
- Мачты
- Площадка светофора
- Кронштейн звонка сигнализации
- Шайба крепления кабеля
- Кронштейн СЯ-24, СЯ-42
- Шпилька узел крепления ДТЕМГ
Перечисленная продукция является основным направлением нашего производственного объединения
